Torrevieja. Alicante Bungalow. New Build

Ref: VHRSP-75518

259.000€

Torrevieja. Alicante

VHRSP-75518
Bungalow. New Build
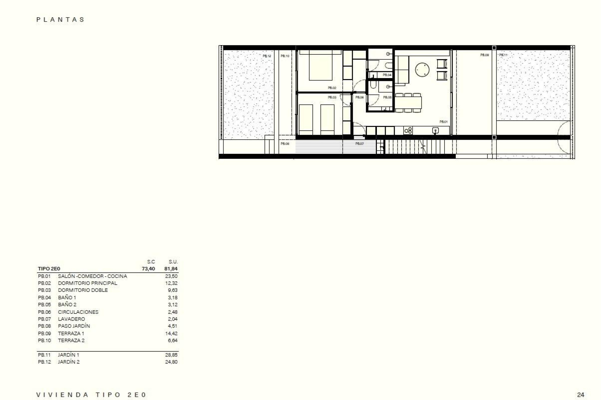
  • 81m2
  • 53m2
  • 2
  • 2
  • Yes

Features

Check Bedrooms: 2
Check Bathrooms: 2
Check Built: 81m2
Check Usable: 73m2
Check Plot: 53m2
Check Pool: Yes
Check Distance to beach: 3500 Mts.
Check Garden
Check Gated
Check Near Schools
Check Air Conditioning: Pre-Installed
Check Communal Pool
Check Number of Parking Spaces: 1
Check Near Commercial Center
Check Location: Coastal, Urbanisation
Check Double Bedrooms: 2
Check Near Golf / Golf Resort Property
Check Beach: 3500 Meters
Check Terrace: 20 Msq.
Check Parking - Space
Check Useable Build Space: 73 Msq.
Check Storage / Trastero

Description

Features



Location

Agent

Matthias

Matthias

Administrator

VH Inmo

Ask for info

Whatsapp Contact by WhatsApp

Contact Form

Responsable del tratamiento: Matthias Van Houteghem, Finalidad del tratamiento: Gestión y control de los servicios ofrecidos a través de la página Web de Servicios inmobiliarios, Envío de información a traves de newsletter y otros, Legitimación: Por consentimiento, Destinatarios: No se cederan los datos, salvo para elaborar contabilidad, Derechos de las personas interesadas: Acceder, rectificar y suprimir los datos, solicitar la portabilidad de los mismos, oponerse altratamiento y solicitar la limitación de éste, Procedencia de los datos: El Propio interesado, Información Adicional: Puede consultarse la información adicional y detallada sobre protección de datos Aquí.

Similar properties

WhatsApp