Pilar de la Horadada. Alicante Bungalow. New Build

Ref: VHRSP-69681

291.500€

Pilar de la Horadada. Alicante

VHRSP-69681
Bungalow. New Build
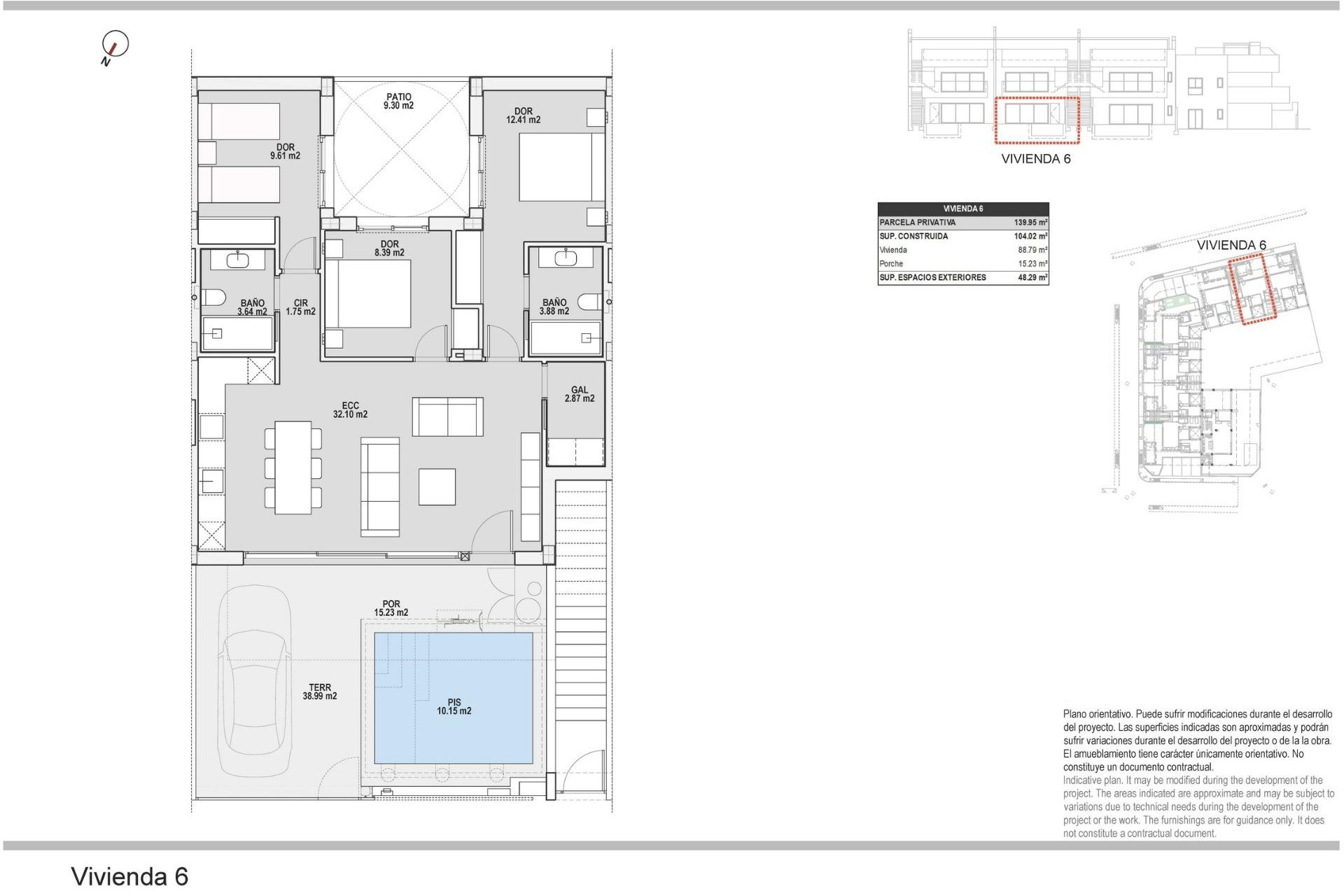
  • 104m2
  • 48m2
  • 3
  • 2
  • Yes

Features

Check Bedrooms: 3
Check Bathrooms: 2
Check Built: 104m2
Check Usable: 95m2
Check Plot: 48m2
Check Pool: Yes
Check Distance to beach: 3000 Mts.
Check Private pool
Check Garden
Check Gated
Check Near Schools
Check Air Conditioning: Pre-Installed
Check Double Bedrooms: 3
Check Number of Parking Spaces: 1
Check Near Commercial Center
Check Near Bus Route
Check Location: Coastal, Urbanisation
Check Useable Build Space: 95 Msq.
Check Beach: 3000 Meters
Check Parking - Space
Check Terrace: 15 Msq.
Check Laundry Room

Description

Features



Location

Agent

Matthias

Matthias

Administrator

VH Inmo

Ask for info

Whatsapp Contact by WhatsApp

Contact Form

Responsable del tratamiento: Matthias Van Houteghem, Finalidad del tratamiento: Gestión y control de los servicios ofrecidos a través de la página Web de Servicios inmobiliarios, Envío de información a traves de newsletter y otros, Legitimación: Por consentimiento, Destinatarios: No se cederan los datos, salvo para elaborar contabilidad, Derechos de las personas interesadas: Acceder, rectificar y suprimir los datos, solicitar la portabilidad de los mismos, oponerse altratamiento y solicitar la limitación de éste, Procedencia de los datos: El Propio interesado, Información Adicional: Puede consultarse la información adicional y detallada sobre protección de datos Aquí.

Similar properties

WhatsApp