Los Alcazares. Murcia
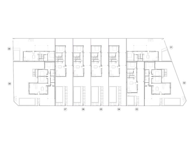
Villas neuves avec piscine privée à Los Alcázares, Costa Cálida Villas modernes exclusives à seulement 700 mètres de la mer Découvrez ce lotissement exclusif de 9 villas neuves à Los Alcázares, l'une des localités les plus prisées de la Costa Cálida pour sa proximité avec la mer, son ambiance détendue et son excellente offre de services. Chaque villa dispose d'une piscine privée, d'un garage couvert indépendant et a été conçue pour offrir confort, fonctionnalité et style contemporain. Conception en duplex avec solarium et orientation idéale Les maisons sont réparties sur deux étages et disposent de 3 chambres et 2 salles de bains, d'une cuisine ouverte entièrement équipée, d'un grand salon-salle à manger, d'une terrasse et d'un jardin au rez-de-chaussée, d'une terrasse au premier étage et d'un solarium privé sur le toit avec cuisine d'été. Grâce à leurs différentes orientations, elles permettent de profiter du soleil toute la journée, toute l'année. Équipements de haute qualité Ces villas sont conçues avec des matériaux de première qualité et offrent : Piscine privée avec douche extérieure Cuisine équipée d'appareils électroménagers : réfrigérateur, four en hauteur, micro-ondes encastré, plaque vitrocéramique, hotte aspirante et lave-vaisselle intégré Armoires encastrées avec tiroirs Salles de bains complètes avec meuble, miroir avec éclairage et parois de douche Pré-installation de la climatisation Installation de 2 panneaux solaires Cuisine d'été sur le solarium Place de parking couverte sur le terrain Emplacement imbattable sur la Costa Cálida Situées à seulement 700 mètres des plages de la Mar Menor, ces maisons vous permettent de profiter d'un environnement naturel unique avec des eaux calmes et chaudes. Los Alcázares combine un style de vie détendu avec tous les services à portée de main : supermarchés, restaurants, installations sportives et centres de santé. Idéal aussi bien comme résidence principale que comme résidence secondaire. Distances des points d'intérêt Plage du Mar Menor : 0,7 km Terrains de golf (Roda, La Serena, Mar Menor Golf) : entre 3 et 10 km Aéroport international de Murcie : 30 km Cartagena : 22 km Centre commercial Dos Mares : 13 km Port de plaisance de Los Alcázares : 2 km Votre refuge de soleil et de tranquillité en Méditerranée Ces villas offrent la combinaison parfaite entre design moderne, intimité, confort et emplacement privilégié. Contactez-nous dès aujourd'hui et prenez rendez-vous pour découvrir votre prochaine maison en bord de mer.
Administrateur - expert immobilier