Torrevieja. Alicante Bungalow. Nieuwbouw Woningen

Ref: VHRSP-45342

340.000€

Torrevieja. Alicante

VHRSP-45342
Bungalow. Nieuwbouw Woningen
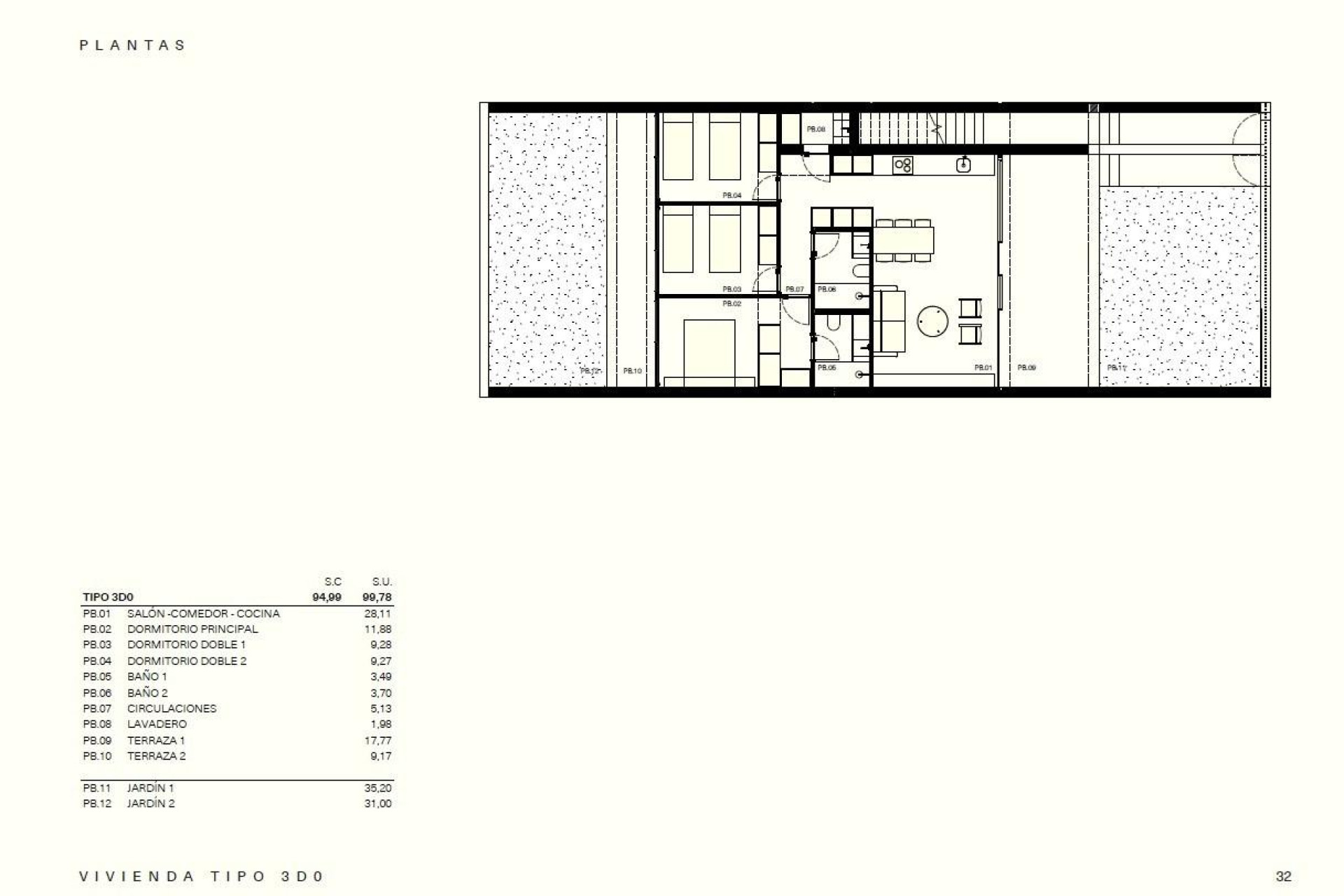
  • 99m2
  • 76m2
  • 3
  • 2
  • Ja

Kenmerken

Check Slaapkamers: 3
Check Badkamers: 2
Check Bebouwde oppervlakte: 99m2
Check Bruikbare oppervlakte: 94m2
Check Plot: 76m2
Check Zwembad: Ja
Check Afstand naar het strand: 3500 Mts.
Check Garden
Check Gated
Check Near Schools
Check Air Conditioning: Pre-Installed
Check Double Bedrooms: 3
Check Communal Pool
Check Number of Parking Spaces: 1
Check Near Commercial Center
Check Location: Coastal, Urbanisation
Check Near Golf / Golf Resort Property
Check Beach: 3500 Meters
Check Terrace: 27 Msq.
Check Parking - Space
Check Useable Build Space: 94 Msq.
Check Storage / Trastero

Beschrijving

Kenmerken



Kaart

Agent

Matthias

Matthias

Zaakvoerder - vastgoedexpert

VH Inmo

Info aanvragen

Whatsapp Contact via WhatsApp

Contactformulier

Responsable del tratamiento: Matthias Van Houteghem, Finalidad del tratamiento: Gestión y control de los servicios ofrecidos a través de la página Web de Servicios inmobiliarios, Envío de información a traves de newsletter y otros, Legitimación: Por consentimiento, Destinatarios: No se cederan los datos, salvo para elaborar contabilidad, Derechos de las personas interesadas: Acceder, rectificar y suprimir los datos, solicitar la portabilidad de los mismos, oponerse altratamiento y solicitar la limitación de éste, Procedencia de los datos: El Propio interesado, Información Adicional: Puede consultarse la información adicional y detallada sobre protección de datos Aquí.

Vergelijkbare eigendommen

WhatsApp