Polop. Alicante
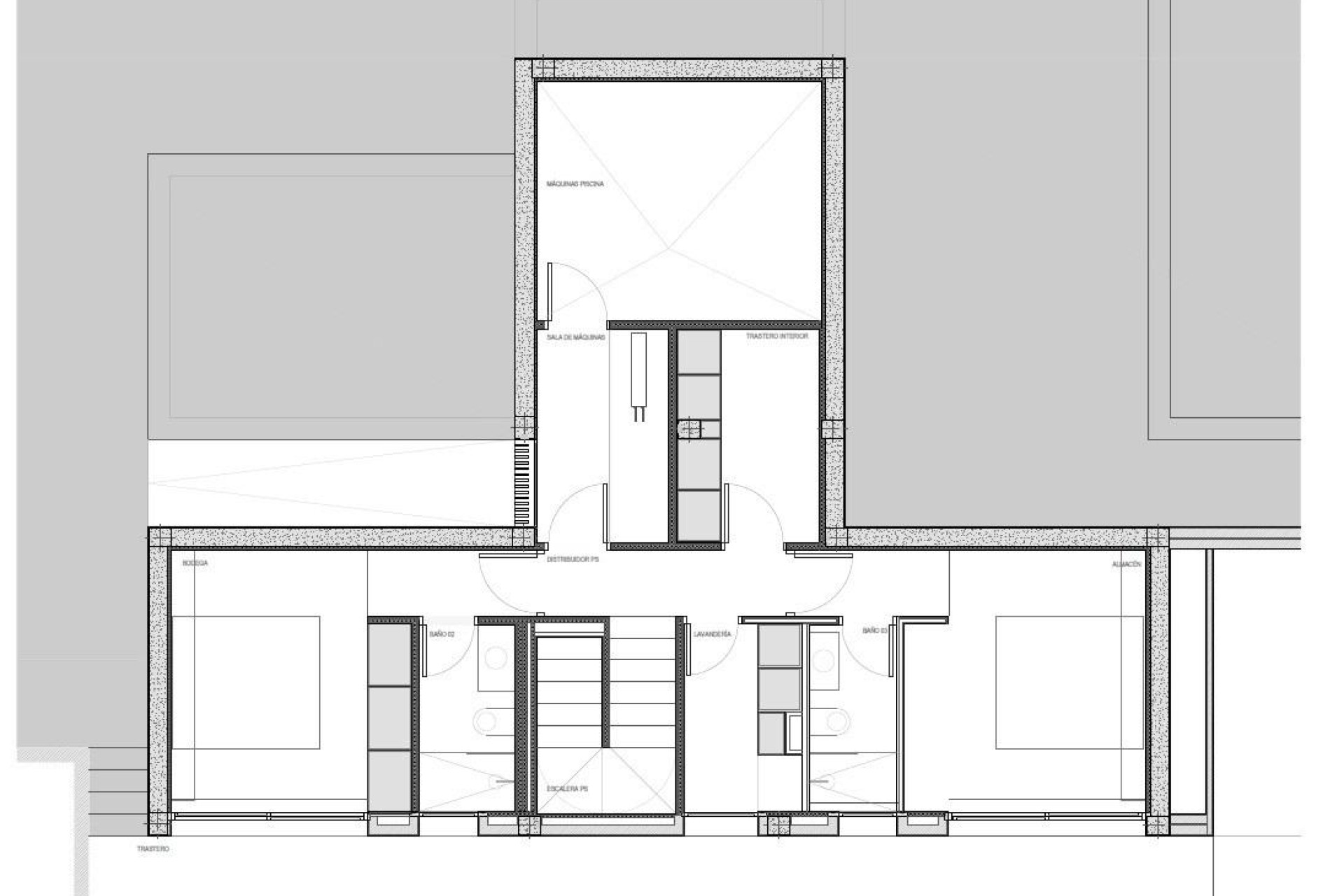
Sleutelklare nieuwbouwwoning met uitzicht op zee in La Alberca Polop Luxe moderne villa in een natuurlijke bergachtige omgeving Deze sleutelklare moderne villa is gelegen in La Alberca, een rustige woonwijk van Polop, omgeven door bossen en bergen. Door de verhoogde ligging geniet de woning van een panoramisch uitzicht op de Middellandse Zee, de bergen en het historische centrum van Polop. De villa biedt privacy, rust en uitstekende verbindingen met de kust en nabijgelegen steden. Polop is een charmant dorpje in de regio Marina Baixa aan de Costa Blanca, bekend om zijn traditionele karakter en natuurlijke omgeving. De woning ligt dicht bij alle voorzieningen in La Nucia, waaronder winkels, restaurants, sportcentra en scholen, terwijl de stranden en levendige kustplaatsen op slechts een klein eindje rijden liggen. Ruime indeling over de begane grond, kelder en solarium De villa is verdeeld over een begane grond, kelder en solarium op het dak, en biedt royale leefruimte en flexibiliteit. Op de begane grond leidt een uitnodigende hal met ingebouwde kledingkast naar twee slaapkamers met eigen badkamer, waaronder een master suite met openslaande ramen naar een Juliette-balkon en terras. De open woon- en eetkamer sluit naadloos aan op een overdekt pergolaterras en een privézwembad met zout water. De kelderverdieping beschikt over twee extra slaapkamers met eigen badkamer en grote ramen, een flexibele speelkamer of bioscoopzaal met water- en elektriciteitsaansluitingen voor een bar, een volledig uitgeruste wasruimte met Haier-apparatuur en twee technische opslagruimtes. Het solarium op het dak biedt een ruime buitenruimte met panoramisch uitzicht op zee en is voorbereid voor de toekomstige installatie van zonnepanelen. Een buitenkeuken, meerdere opbergkasten en een mediterraan aangelegde tuin met automatische irrigatie maken het exterieur compleet. Hoogwaardige voorzieningen en energie-efficiëntie Deze villa onderscheidt zich door zijn hoogwaardige afwerking en geavanceerde installaties, waaronder: Centraal keukeneiland met geïntegreerde BOSCH-apparatuur Natuurstenen werkbladen binnen en buiten Voorbereiding voor vloerverwarming Mitsubishi aerothermisch airconditioningsysteem Energie-efficiëntieklasse A Voorbereiding voor smart home-systeem Zoutwaterzwembad met optionele verwarming Privé parkeerplaats voor twee voertuigen Grote ramen met zonwerend glas maximaliseren het natuurlijke licht en zorgen tegelijkertijd voor comfort en veiligheid. Uitstekende locatie en afstanden Centrum van Polop 2 km La Nucia 4 km Benidorm 12 km Altea 10 km Stranden 10 km Villaitana Golf 14 km Luchthaven Alicante 65 km Verzeker uzelf van uw droomhuis in Polop Deze uitzonderlijke, instapklare villa combineert privacy, design en een panoramisch uitzicht in een van de aantrekkelijkste gebieden in het binnenland van de Costa Blanca. Neem vandaag nog contact met ons op voor een privébezichtiging en maak van deze luxe villa in La Alberca Polop uw nieuwe thuis.
Zaakvoerder - vastgoedexpert